Hayden School District Master Plan

  • Hayden School District

  • Hayden, Colorado

Hayden School District Master Plan.

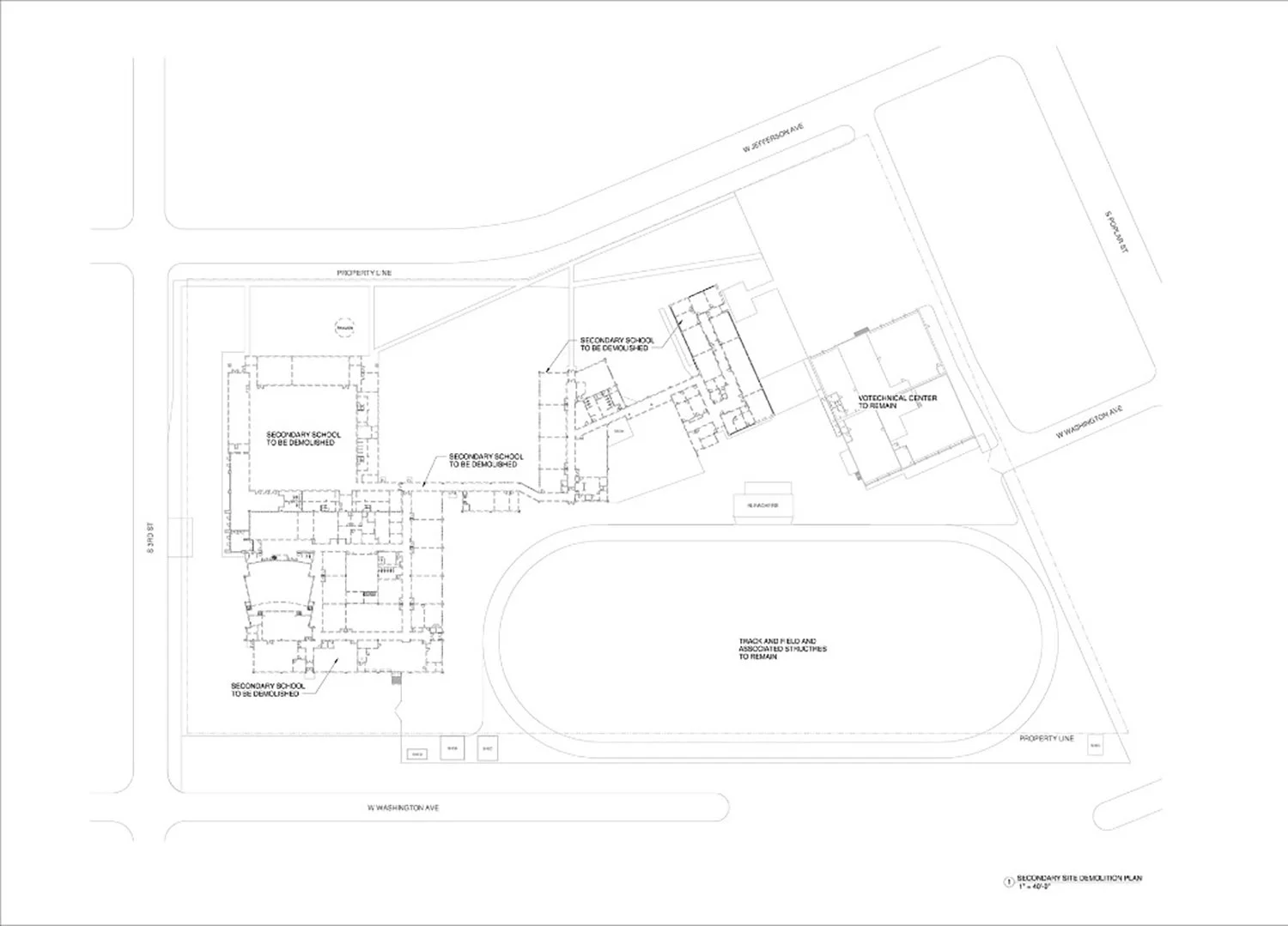
The campus master plan for the Hayden School District began in early July of 2016 and progressed through a comprehensive programming phase in September followed by a design advisory group (DAG) led design process involving representation from the community, teachers, administrative staff and board members. The master plan wrapped up in December of 2016 with a recommended plan to consolidate the campus on the existing elementary school site creating a PK-12 under one roof configuration with enhanced safety and security, 21st Century learning opportunities with unified administrative functions. Utilizing the campus master plan, a BEST Grant was applied for in the Spring of 2017 and was successful.

Previous
Previous

Sierra Grande School District Master Plan

Next
Next

SPANN (RMSER) Master Plan